Details
Dijual Office Tower ini terletak di area Kampung Melayu dan hanya kurang lebih 300 meter ke Toll BayPas Jatinegara. Lokasi yang Strategy. Hanya 10 minutes ke Mall Kotakasablanka. Gedung ini dibangun di atas tanah seluas 3693.13 M2 dan terdiri dari 4 lantai dengan total bangunan kurang lebih 4,687.18 m2, dekat ke fasilitas umum seperti Rumah Sakit (RS Premier Jatinegara, RS Hermina), Perbankan, Ruko, dan Area usaha padat.
Detail:
– Luas tanah: 3.693,13 m2
– Luas bangunan: 3.848 m2
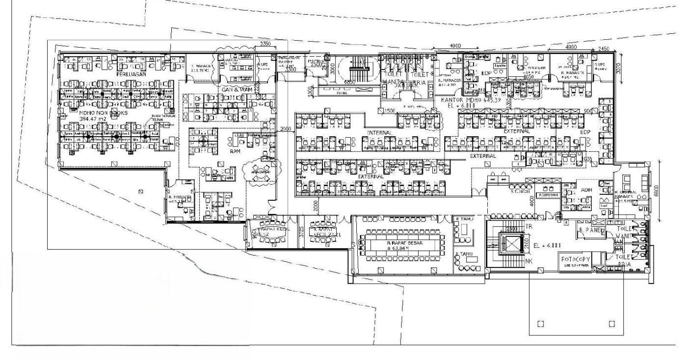
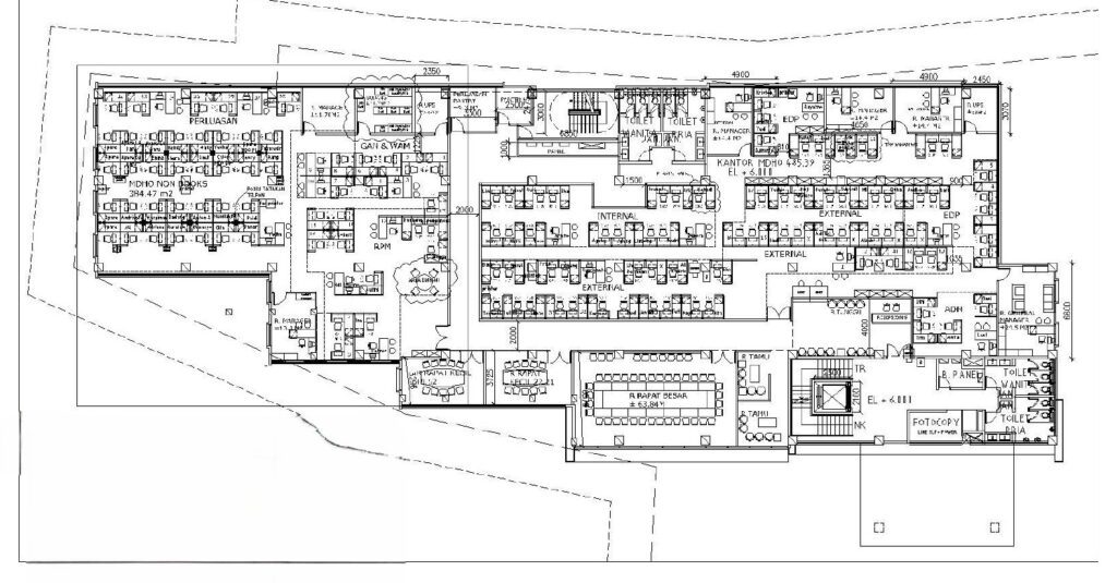
Lt.1 luas 1244 M2,
LT.2 luas 1207 M2,
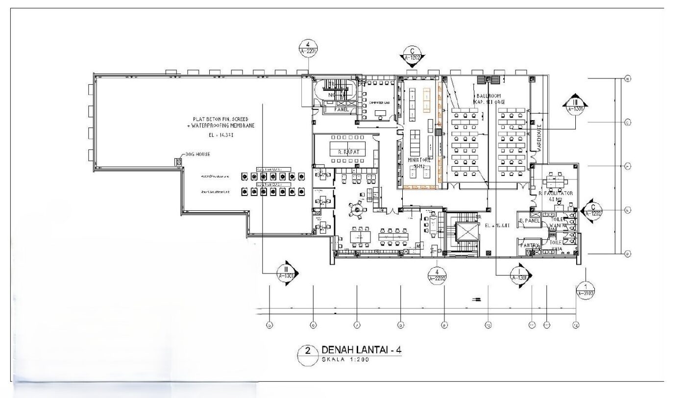
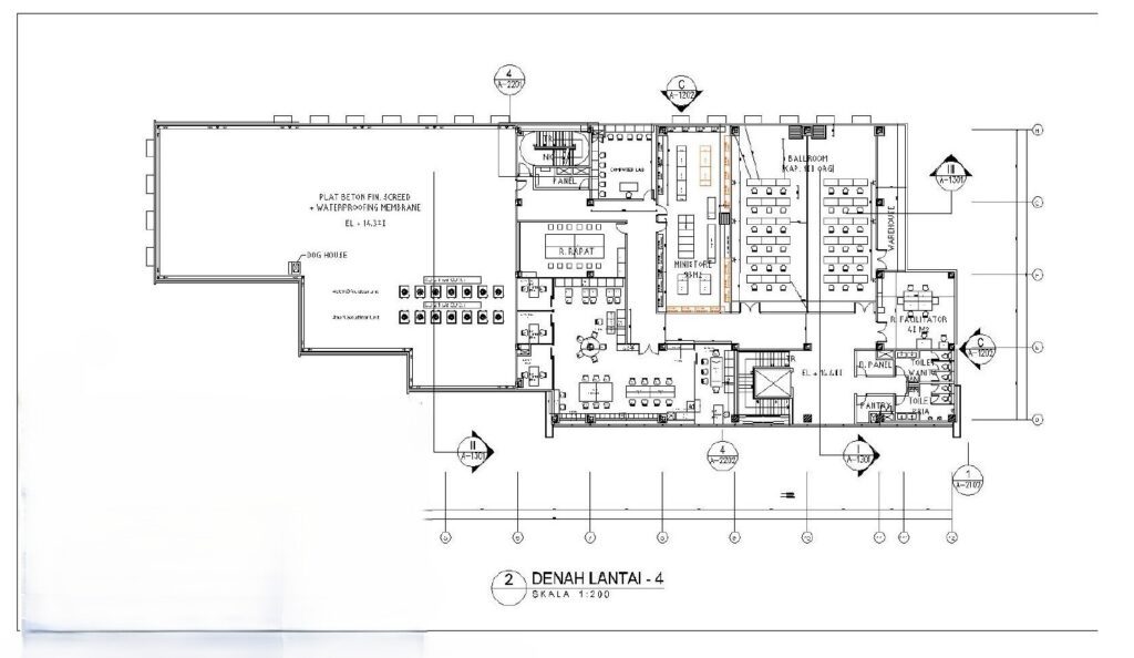
Lt.3 luas 1368 M2,
Lt.3 luas 867.85 M2,
– 12 Toilet
– Lift Kap. 10 orang (1,350 kg)
– Kapasitas parkir 50 mobil & 78 motor
– Lebar muka 55 m2
– Sumber air PDAM
– CCTV
– IMB
– Dekat akses tol Panjaitan
– Dekat ke Fasilitas umum (Rumah Sakit, Perbankan, Ruko, dll)
– 9 menit ke Stasiun KRL Jatinegara
– 5 menit ke Apartment Basuri
Harga Jual:
Rp 200 Miliar
- Tipe Properti: Gedung
- Status Properti: Dijual
- Kota: Jakarta Timur
- Provinsi: DKI Jakarta
- Kecamatan: Jatinegara
- Nama Jalan / Tempat: Kampung Melayu
- Kamar Mandi: 12 Bth
- Luas Bangunan: 3848 m²
- Lantai: 4
- Luas Tanah: 3693,13 m²
- ID: 18693
Features
- Air Conditioning
- High ceilings
- Lift
- Storage
- Strategies Area
- Toilet
- Unfurnished
- ID: 18693
- Views: 344